CHCI
KOUPIT
CHCI
PRODAT
Kontakt Služby O společnosti
 
menu
 
CHCI KOUPIT CHCI PRODAT Kontakt Služby O společnosti
 
 
Vše Byty-prodej Byty-pronájem Domy Pozemky Komerční prostory Ostatní
Vše Byty-prodej Byty-pronájem Domy Pozemky Komerční prostory Ostatní
 

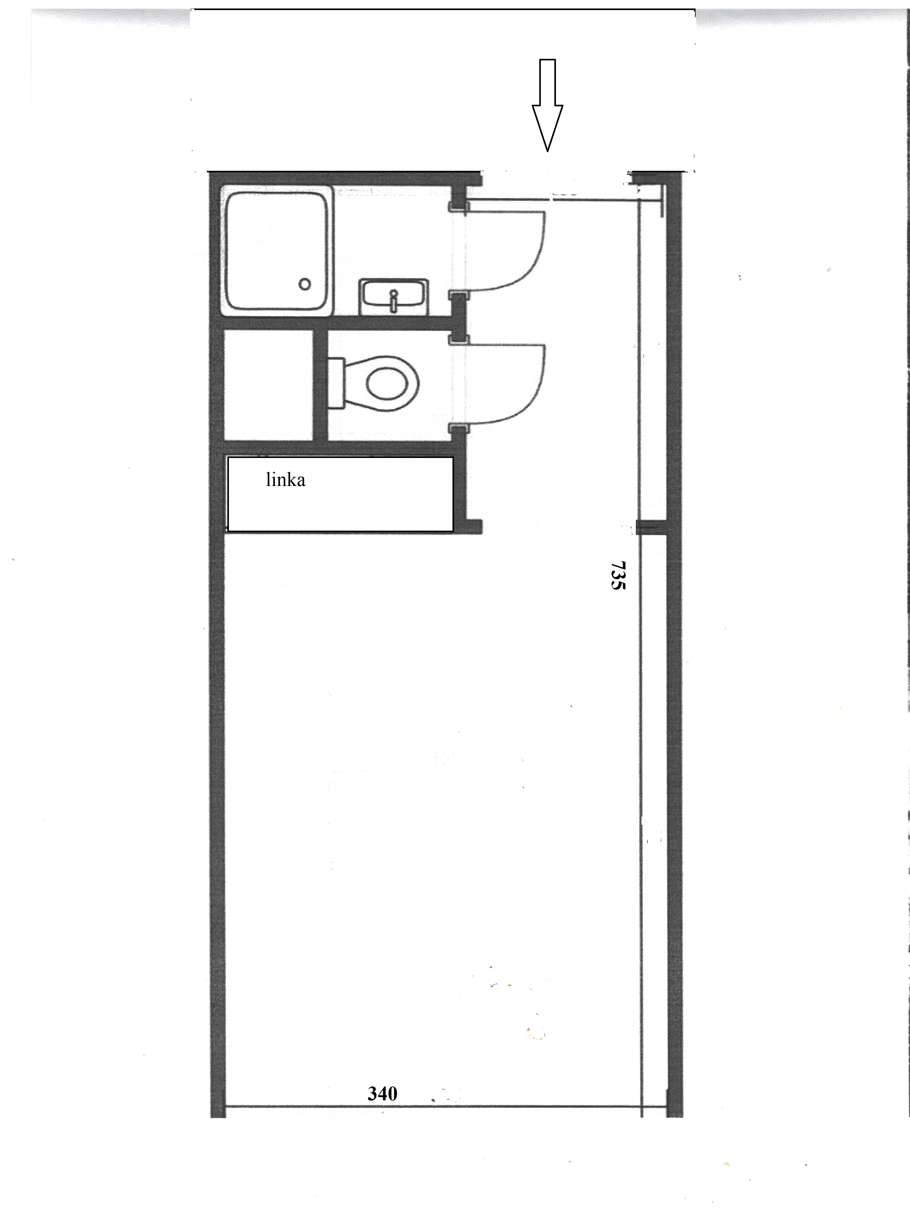
1+kk,OV, 25m2 s krásným výhledem, panel

Narcisová, Praha 10


Cena: 4 600 000,-Kč

Prodej bytu 1+kk v osobním vlastnictví s užitnou plochou 25 m2+plocha sklepa. Byt se nachází v devátém patře -celkem 12 a je v dobrém technickém stavu, což poskytuje možnost okamžitého stěhování.

 

V bytě je zděné jádro, plastová okna, vyštukováno a vymalováno. Na podlaze je koberec-nutná výměna, koupelna + WC dlažba.

V chodbě je vestavěná skříň, v lince je umístěna pračka, malá lednice.

PENB: E

 

Dům je ve velmi dobrém stavu - průběžně udržován, vyměněny stoupačky, k dispozici jsou dva výtahy jeden osobní a druhý nákladní. Sklep je v suterénu domu. Náklady na bydlení činí 3920 Kč měsíčně plus 500 Kč za elektřinu. 

Kompletní občanská vybavenost- škola, školka, obchody, pošta, zdravotní středisko.

 

Prohlídky jsou možné po předchozí domluvě. Pro více informací o této nemovitosti nebo sjednání prohlídky nás prosím kontaktujte nebo vyplňte níže uvedený formulář, rádi Vám pomůžeme.


Rychlý kontakt:

vyplňte svuj kontakt a my se Vám ozveme
Telefon / email:
Dotaz / zpráva:

 
 

1+kk,OV, 25m2 s krásným výhledem, panel

Narcisová, Praha 10


Cena: 4 600 000,-Kč

Prodej bytu 1+kk v osobním vlastnictví s užitnou plochou 25 m2+plocha sklepa. Byt se nachází v devátém patře -celkem 12 a je v dobrém technickém stavu, což poskytuje možnost okamžitého stěhování.

 

V bytě je zděné jádro, plastová okna, vyštukováno a vymalováno. Na podlaze je koberec-nutná výměna, koupelna + WC dlažba.

V chodbě je vestavěná skříň, v lince je umístěna pračka, malá lednice.

PENB: E

 

Dům je ve velmi dobrém stavu - průběžně udržován, vyměněny stoupačky, k dispozici jsou dva výtahy jeden osobní a druhý nákladní. Sklep je v suterénu domu. Náklady na bydlení činí 3920 Kč měsíčně plus 500 Kč za elektřinu. 

Kompletní občanská vybavenost- škola, školka, obchody, pošta, zdravotní středisko.

 

Prohlídky jsou možné po předchozí domluvě. Pro více informací o této nemovitosti nebo sjednání prohlídky nás prosím kontaktujte nebo vyplňte níže uvedený formulář, rádi Vám pomůžeme.